久保地区と水中地区のあいだに広がる上野・大窪地籍の果樹園に、薬剤散布用の水を供給する施設について整理しました。

↑密植栽培りんご園でSSによる薬剤散布
上野消毒用水利施設は、戸狭原の沢水・湧水を集水して貯水槽に溜めた水を、大窪・上野地籍の果樹園に埋設した送水配管を通して配水する施設で、同地籍で果樹栽培を営む農家が組合員になっている上野消毒用水利組合が管理・運営しています。

↑消毒用水利施設の取水口、貯水槽と送水配管(埋設)
←戸狭原を流れる沢水・湧水
←沢水・湧水を集める取水口
(平成5年度新設)
←網で木の葉などのゴミを取り除き、土砂を沈殿させて貯水
←送水ゲート(左)と排水ゲート(右)
排水ゲートを閉じ送水ゲートを開けて導水管で貯水槽に送水する
←取水口と排水溝
取水口を掃除するときは排水溝に流れる
←上下2基のコンクリート貯水槽
←貯水槽(上)
8000×4500×3250
貯水量:約70立方メートル
取水口から導水管で流下する水を溜め、満タンになってオーバーフローした水を下の層に送る
(平成5年度増設)
←点検口と梯子
←貯水槽(下)
7400×4000×2800
貯水量:約50立方メートル
上の貯水槽からオーバーフローした水を貯める
(昭和49年度新設)
←満タンになってオーバーフローした水は久保川へ排水
←仕切弁
貯水時はハンドルを左回転して閉める
配水時にはハンドルを右回転して開いて送水
←りんご畑の取水栓
SSに直接給水できる
←空気抜弁
←最終端末
止水時には配水バルブを開放して配管内を空にする
←育成広場の取水栓
久保共同墓地で利用


十々木正三、勝山実、西澤光雄、勝山裕夫、畔上信行、勝山不二夫、勝山剛司、勝山茂美、浦野次芳
(名称及び事務所)
第1条 この組合は上野消毒用水組合と称し、事務所を組合長宅におく。
(目的)
第2条 この組合は上野地帯の農作物消毒用水配管施設を有効に利用し、農作物の品質向上を図り以て農業経営の安定を計る。
(地域及び組織)
第3条 この組合は上野地帯で耕作するもので第2条の目的に賛同したもので組織する。
(事案)
第4条 この組合は目的達成のために次の事業を行う。
一、施設管理に必要な事業
二、施設に対する借入金の償還に関すること。
三、その他この組合に必要な事項
(加入及び脱退)
第5条 第2条の目的の耕地の耕作権の発生した時点より組合員とする。
2、新規な加入は総会の議決を得て加入金の納入後組合員とする。
3、第2条の目的の耕作権が消失した時点をもって脱退とする。ただし施設に対する借入金を整理し脱退するものとする。
4、相続等による加入脱退は前項目の規定にかかわらず継続するものとする。
(役員)
第6条 この組合に次の役員をおく。
一、組合長 1名
二、副組合長(会計担当) 1名
三、理事(連絡担当) 若干名
四、監事 若干名
2、前項の役員は総会において選出する。
(役員の任務)
第7条 組合長は組合を代表し総会の決定に従って組合の業務を処理し、副組合長は組合長を補佐し組合長事故あるときはその任務を代理する。
2、理事は正副組合長を助けて業務執行の任に当る。
3、監事は組合の運営及び会計を監査する。
(役員の任期)
第8条 役員の任期は2年とする。ただし再選を妨げない。
2、補欠役員の任期は前任者の残任期間とする。
(会議)
第9条 この組合の会議は次のとおりとする。
一、総会
二、役員会
2、総会はこの組合の最高議決機関であり事業執行に関する一切の決議を行う。
3、組合長は毎年1回定期総会を招集し必要に応じ臨時総会を招集する。
4、役員会は総会の議決に基づく事業の施行について協議推進し必要に応じ組合長が招集する。
(施設の管理)
第10条 事業に必要な施設の管理は別に定める施設管理規定による。
(会計)
第11条 この組合の経費及び施設の借入金に対する償還金は賦課金償還賦課金その他を以てあて、別に定める規定により徴収する。
2、この組合に会計簿及び償還金賦課金の徴収に必要な帳簿を備える。
(事業及び会計年度)
第12条 この組合の事業年度及び会計年度は1月1日より12月31日とする。
付則 この規約は昭和49年9月16日より施行する。
1、目的
上野消毒用水組合が管理する消毒用水配管施設の管理運営を円滑にするため上野消毒用水組合規約第10条によりこの規程をおく。
2、管理
施設の管理は次による。
イ、この施設の使用は毎年3月20日より10月20日までとする。
ロ、この施設は水源が拡大され充分な余力が見込まれるまで旱魃時のかん水等消毒以外に大量の水の使用をしてはならない。
ハ、組合長はこの施設の円滑なる利用を計るため受益者により水源その他の清掃を定期的に行う。
3、施設の変更
施設の増設改廃等の工事一切は組合で行い個人で変更してはならない。
ただし変更による工事費は個人的要素の度合により個人より徴収するものとする。
4、施設の修理
この施設の修理その他管理に必要な費用は組合費をあてる。
ただし個人の過失による損傷の修理は個人負担とする。
その他
この規程にない事項の生じた時は総会において決定する。
本規程は昭和49年3月 日より施行する。
省略

↑空中写真は「国土画像情報(カラー空中写真) 国土交通省」を元に作成
上野・大窪地籍は背後の戸狭、河野地籍の山崩れによって発生した土石などが長い年月の間に堆積して形成された山麓堆積地形で、灌漑用水に乏しいことから耕地の大部分で畑作をせざるを得ず、近世までは麦と大豆、粟・稗といった自給作物を主に栽培してきました。
近代になって経済が発展すると換金作物の栽培が増え、世界経済の変化に翻弄されながら桑から葉たばこ、ホップなどへと転換し、今日ではリンゴ、生食用ブドウ・ワインブドウ、スモモやプルーンなどの果樹栽培が主となっています。
果樹栽培においては特有の病害虫被害を防ぐため薬剤散布による防除が必須です。
昭和20年代初期は手押しポンプで薬液をリンゴの木に散布していました。
←肩掛式ポンプ
やがて井戸ポンプ式の手あおり型に変わり、1石(180L)くらいの水槽をホースの届く範囲に移動してはポンプを手であおって送水し、灌注竿で手散布しました。
石油発動機が登場すると、400L〜500Lのコンクリート製水槽を複数設置して水を貯めて薬液を調製し、動力ポンプで動噴用ホースや圃場に敷設した塩ビパイプに圧送しましたた。
ガーデントラクターに動力ポンプをセットしたものも登場しています。
←コンクリート製貯水槽
昭和30年代に入って薬剤タンクと強力噴霧器、運搬機を一体化したスピードスプレヤー(通称SS)が出現し、強い噴射で霧状に包むことで防除効果を飛躍的に向上させるとともに、防除作業に要する労力を大幅に低減しました。
←スピードスプレヤーによるリンゴの薬剤散布
SSは高価なことから個人所有のほかに複数人による共同使用も多く、散布に適した期間内に作業を終わらせるには薬剤を効率よく調製する必要があり、果樹園が集積している地域では大量に薬剤を調製して複数の農家に供給する共用薬調施設が設置されました。
←共同薬調設備で薬剤をSSのタンクに投入
しかし上野・大窪地籍は果樹栽培面積や水源などが共用施設の設置基準に満たないとして共同薬調設備は設置されなかったことから、久保地区と水中地区では各圃場に消毒用水を供給する施設をそれぞれで敷設することになりました。
施設の管理に苦労された役員さんの記録です。(抜粋)
| 活動日 | 活動内容 |
|---|---|
| 昭和61年 3月28日 |
・朝、副組合長の宮前禮太郎様と一緒に行き貯水槽へ水を入れる。けれど現在出ている水が少量のため心細い感じだ |
| 3月30日 | ・飯前に私一人でどれぐらい溜まっているか見に行く。案の定、予定したほど水は溜まっていない。それで帰途副組合長様へ立寄りそのことを話すと、そうかやっぱり心配していた通りだなあと言われる。それで明日また飯前に一緒に見に行く約束をする |
| 3月31日 | ・飯前に再度副組合長様と貯水槽を見に行く。今朝は約半分まで溜まってきていた。けれどこれくらいの水ではどうしようもないなあと話をし、後、2人で水源の近くまで管に沿って歩いてみる。別に詰まっているところもないようだ。 ・兎に角話をしてバルブを交換したり、また中間の取り入れ口をもっと具合よくしたらと言って別れる ・別れるときに明日また飯前に行き貯水槽の水を出すことに決める ・それで序でなので管に沿って一通り見て廻る。けれど異常はないように見受ける |
| 4月1日 | ・早朝に副組合長と一緒に行き、消毒用水の水を出す ・出した後、見廻ってみる。秀雄様、登志雄様、泰人様の畑のところにある空気抜き弁が故障して通水ができなくなる ・早速副組合長様と相談し、持田設備様に修理して頂くようにする ・正午近くに修理が終わり、また水を通す ・また剛司様の畑で空気抜き弁が故障しているため通水を止める ・夜になって持田設備様にお願いして修理して頂 |
| 4月3日 | ・持田設備様をお願いする。どうも水がなく、水源から下の中間辺りまで機械で掘り起こしてもらい調べていただく |
| 4月4日 | ・早朝に現場へ行ってみる。持田様が行っていて作業をしてくれている。けれど肝心の水がよく出ない。それで送水管を二カ所切断してゴミでも詰まっているかと調べてくれる。途中に小石が詰まっていたとのこと ・修理ができて良かった。下の貯水槽へ行き中を見ると水がいっぱい溜っていて驚く ・送水してあるので水が出るのは当たり前の事だが、西澤トミエ様より電話があって水中のお宮の北側で漏水しているとの事。また水を止める ・持田様ヘ連絡して現場へ来てもらい修理して頂く ・昨秋道路工事の折り、どうも工事がうまく出来ていなかったようだ |
| 4月9日 | ・勝山寛様より連絡があって、道路工事の折にビニール管を欠いてしまい、一時送水を中止してくれとの事だ ・早速送水を中止して修理して貰う ・修理が終わったところでまた送水をする |
| 昭和62年 3月25日 |
・消毒用水の現況を見に行く ・貯水槽の中へ入ってみる。去年よりは沢山水が入っていいように思ったのだが |
| 3月26日 | ・昨日バルブを閉めて来てあるので見に行く。しかし予定したほど溜っていない ・副組合長の禮太郎様にも行って貰って現場を見る ・どうも変なので辺りを手探り石など掘り出してみる。なかなか思うようにいかない。夕方だったのでまた明日という事で |
| 3月27日 | ・早朝に持田設備さんが来てくれる ・やっぱり一部のところが詰まっていてどうにもならなかった ・そこを直したから今度はどんどん水が流れ、貯水槽へ行っていると言われた。早速貯水槽を見ると間もなく満タンになるところだった ・午後になって副組合長様と山へ行き、貯水槽より水を出す ・送水したので畑を一回りする。別に途中での異常は認めず順調にきていると思った |
| 5月13日 | ・消毒用水が出なくなったと連絡があり、一時送水を止めるべく貯水槽へ行ってバルブを閉める ・灌漑のため畑へでもかけられたようだとのこと |
| 5月15日 | ・貯水槽に水が溜まり通水する。もう時期が来ていて水を止めることができない |
| 6月2日 | ・水の出が悪いので山の貯水槽へ行ってみる ・このところ続いている旱魃のためどうも出る量が少ないようだ |
| 6月4日 | ・午後になって水が出ないと通報がある ・早速山の貯水槽へ行ってみる。ところがタンクの中は満水なのだ ・変だと思って方々を見て歩く。そしたら程治様の畑の中にあるバルブが閉めてあった ・誰が操作したかわからないが早速開けて送水する |
| 6月10日 | ・正午に電話連絡がある。消毒用水が止まったとの事 ・貯水槽へ行って中を見ると空になっていた ・早速送水を止めて二日ほど待ってもらう |
| 6月12日 | ・夕方になって消毒用水を出しに行く ・けれど貯水槽の中に水はなく、貯水してあるはずの水が溜っていなく、驚いてしまった。変だと思って閉めてあるバルブを見る。誰だか分からないがバルブを開いてしまってある。これでは溜るはずがない ・それでもう一度バルブを閉め、送水を中止して満タンになるのを待つ |
| 6月13日 | ・朝、貯水槽へ行ってみる。早速タンクの中を調べるけれどいくらも溜っていない ・早速役員様達と相談して五日間止めることにする ・組下へ役員様を通して布れて頂く。なんとしても消毒用水がなくては困るので |
| 6月16日 | ・用水組合の方で水不足の事を組合員に周知徹底して貰うため、今回、文書でその旨をお知らせした方がいいのではないかとなり、早速文書を書き役員様を通じて組合員各戸へ配って貰う |
| 6月18日 | ・朝、山の貯水槽へ行ってみる。今朝は満タンになっていてオーバーしている。一週間ぶりの事だ ・夕方通水することに副組合長様と話をしておき、夕方から通水する |
| 6月22日 | ・昼休みに電話がある。また消毒用水が止まってしまったとの連絡なのだ。本当に困った事になったと思う |
| 6月23日 | ・消毒用水がでないという事で水源を見に行く ・水源に水がなくほんの少し出ているだけだ。もっとも連日の晴天に旱魃気味だから無理のない事と思うが ・それで山の神で排水した水がある。これを貰ったらとの話があり、私が代表となって持田設備様へ話に行く。そして貰うようお願いする ・早速ホースを購入してタンクまで引き水する ←送水ホース・兎に角消毒用水を確保しなければと思って |
| 6月26日 | ・朝、山の貯水槽を見に行く ・今朝は幸いに満タンになっていた。それで送水する ・その帰途、持田設備さんへ寄る。そしたらエアー弁を見るからと言ってくれる ・また送水を中止する ・山の貯水槽の側にあるエアー弁を修理して頂く ・もう一カ所、西澤光雄様の畑にあるので修理して頂いた後、再び送水する |
| 8月12日 | ・この処消毒用水は順調に出ていると思っていた ・そんな時電話がある。何かと思って行ってみたが水が出ないとの事 ・早速山の貯水槽へ行き水を止める |
| 8月14日 | ・飯前に山の貯水槽へ行ってみる。タンクが一杯になっていてよかった ・バルブを開いて送水する。大事な消毒時期なので溜っていてほんとうに良かった |
| 11月29日 | ・午後一時半、山の現場へ集合して頂く。役員の方だけ ・それで水源池のカヤ刈等をやってもらい清掃をする。併せて貯水槽の周囲を清掃する ・水源池では用水の出がよくないので見て貰ってもっと水の出が増えるかどうか調べていただく ・その後、家へ寄ってもらい役員会をやる ・水の量を増す様話し合ってもらう。何しろ昨年も今年もだが消毒をやる頃になると水がなく断水になってしまうのでどうしたものか相談して頂く 一、それで申し送り事項として水源池はそのままにしておく。掘削してもたいして量がふえることもない様だ ・それに今年は冬以来雪の降る量が少なく、加えて春から夏にかけて渇水状態の異常なことで出る水も少ないのではないか ・台風も二度ぐらい来たけど雨らしい雨も降らず期待した水量はなかった ・だからもう一年様子を見て掘削したらという事になる 二、山の神の中で西澤秀雄様の山から出ている水これを貰うようにお願いしてホースで引き貯水槽へ入れたのだが、明年度もその様にしてもらいたい ・ホースで引くのでなく永久的な背策をと思いましたけれどこれには問題があるので兎に角62年度に実施したことを又お願いしたい 三、水源池及び貯水槽の周りに張ってある鉄条網を取り除いてもらい、そこへ境界になるよう境の杭を埋けていただくようお願いする ・水源池の中へ入るとか貯水槽の周りを清掃する時、鉄条網が邪魔になる事で 以上三点を申し送り事項にするよう役員会で決定する |
| 12月7日 | ・午後になって消毒用水の送水を止める ・このごろの役員会で秋の防除フラン病に対する消毒があるので今月の中ごろまで送水したらどうかとなっている ・ところが12月に入って直ぐ大雪に見舞われてしまい、しかも二回降ってしまう ・それでもう消毒も駄目になると思って副組合長様と相談して送水を中止する様にする ・一緒に行って貰い水を止める ・その折、貯水槽の中を見て貰う。満タンになっていていいはずの水がない。また故障してしまったようだ ・兎に角雪が沢山あって故障個所が分からない。雪が解けるまで待ってはとなる ・それで夜になってこれは7日の日ですが、福本泰人様より連絡を頂きました。実は用事があって畑を回っている時、勝山忠男様方の畑にある立ち上がりから勢いよく水が噴き出ているのが見つかる。早く知らせなくてはと言って知らせて貰う。故障の所が見つかりほっとする ・忠男様方へ行って直していただく様お願いをする ・何分積雪の中では発見するのに大変なことだが知らせて貰いほっとする |
| 昭和63年 2月17日 |
定期総会 決議事項 一、水源池をもう一度掘り直してみる事 二、とにかく2年水不足になり困ったことなので全員で節水に協力する |
| 活動日 | 活動内容 |
|---|---|
| 平成2年 3月25日 |
・午前9時より上野消毒用水の施設の整備点検について行う。持物はハンドルやナタガマ、クサカキ等にて役員全員で現場へ集合する。 ・早速水槽のバルブを閉め申し送りのビニールホースを引き、水掛を役員全員で行う。順調に流れた ・前年敷設したホースもそのまま入れておいた ・そして水の溜るのも待たずに送水した。消毒も間近になったので早急に行った |
| 6月1日 | ・午前5時半より上野消毒用水のビニールホースの張替えを役員全員にて行う。前回のホース破損につき再度張替える。それらの理由は不二夫さんより消毒不能とのことと連絡があって早速水槽を点検したらホースが破損していたので早急に副の忠明さんと相談して荻原さんよりホースを購入して貰い張替えすることにして行った |
| 6月12日 | ・上野消毒用水パイプの破裂しているので持田武信さんに修理を頼んで直して貰う。それはs水中のお八幡の前の勝山日出人さんの引込線で立上りの下通りであった ・また持田武信さんに水槽よりの送水バルブの弁も直して貰うよう頼んだ |
| 8月16日 | ・午後送り盆でお墓で剛司様より聞くところによると、上野用水の剛司さんの畑の引込の基のパイプより水が出ているので破損個所の確認をした |
| 8月19日 | ・修理を持田武信さんにお願いして直して貰った。空気弁と制水弁の中間の継T字形パイプより水漏れあり |
| 8月27日 | ・西澤秀雄様畑の所の空気弁より水漏れあり早急に持田武信様へ話して直して貰うよう頼む |
| 8月29日 | ・勝山実様の上のりんご畑の南側の水中への道路曲り角の本管より水漏れありとの福本泰人様より連絡あり、その旨を武信様へ話す。その後また見に行ったら水漏れが止まってしまったのでそのままになっている |
| 10月2日 | ・再度の破裂で水漏れ。それは水中より久保への横道工事中のことで機械による破損で水を止めに勝山哲夫様畑北側のバルブを締めにいったものの止まらず上のバルブ一郎様北側道路中央部のバルブを締めて止める |
| 12月8日 | ・午後1時半より上野消毒用水を正副組合長で送水を止める。全組合員にも組長を通じ通告する |
| 平成3年 3月30日 |
・午前6時より上野消毒用水組合役員全員で水源と水槽の整備点検等を行う。 ・また水溜め次第送水を行う。前以て各戸へも通告する ・また墓地付近の立上り等蛇口を締める 午後6時頃より役員会を行う 協議事項 平成3年度の維持管理について @役員による交替で管理 A中山間地域総合整備事業についての方針、区より選出の委員に聞く、また委員中より長を決めて話を進めて貰うようにする B研究委員を含む役員会開催日時について決める Cビニールホースの破損について購入し張替える。今後様子を見て購入する Dホース敷設借用地の件についてどうするか。前年度は一級酒1本でお願いすることで前年並みに行う様役員の承諾を得る |
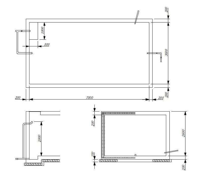
当初の集水施設が機能しなくなったことから、水源と集水方法を変えて取水口を新設するとともに貯水槽を増設して安定供給を図りました。


↑貯水槽増設、取水口整備施工図
最終更新日 2024年 1月24日
上に戻る